
電機振動給料機簡介
自同步慣性振動給料機廣泛用于礦山、冶金、煤炭、建材、輕工、化工、電力、糧食等各行業中,用以把塊狀、顆粒狀及粉狀物料從貯料倉或漏斗中均勻連續或定量地給到受料裝置中去。如向破碎、選煤、篩分、運輸、包裝機械等給料、配料等。 電機振動給料機具有體積小、重量輕、結構簡單、安裝維修方便、給料量大、效率高、噪音低、耗電省、對各種物料適應性強、運行穩定并可無級調節給料量等優點。電機振動給料機選型
1、生產率的確定:本系列自同步慣性振動給料機的生產率是以河沙為標準物料給出的(堆比重為1.6t/m3)。當物料堆比重大于1.6t/m3時,其產量可按額定值選取;當物料的堆比重在1.2-1.6t/m3時,其產量可達到額定產量的0.9-1.0倍。當物料堆比重在0.8-1.2t/m3時,其產量可達到額定值的0.8-0.9倍。物料堆比重小于1.6t/m3時,須適當增加料層厚度,以提高產量。 對于振動給料機難于輸送的物料(如滑石粉、鈦白粉、白泥、面粉、粘土等),以及含水量較大的親水性物料,則應根據試驗確定產量。必要時將槽體適當傾斜安裝(一般向下傾斜10-15°),以增加給料量。
2、控制箱的選擇:本系列給料機配套反接制動控制箱,它可使給料機在停車時快速停機,使給料機迅速通過共振區,避免過大振幅對機器造成損害。該控制箱具有過流、過壓、斷相等保護功能,另可根據工藝要求,增加能耗制動、快慢加料、遠程控制及無級變頻調速等功能。用戶在訂購時請注明。
3、給料機使用條件:
(1)環境溫度不超過+40℃;
(2)在環境溫度為20±5℃時,周圍介質相對濕度不大于85%;
(3)周圍沒有爆炸危險介質;
(4)周圍沒有嚴重腐蝕及影響電氣絕緣的介質。
在選型時考慮到空間位置限制,電機安裝方式分為兩種,一種為電機兩側安裝,另一種為電機后置式安裝。
技術參數
本電機振動給料機產品執行標準JB/T7555-94《GZG慣性振動給料機》,振動電機執行標準JB5330-91《振動源三相異步電動機》。
工藝配置
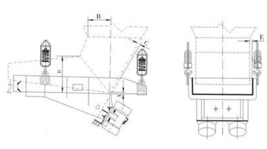
電機振動給料機設計時未考慮倉壓的影響,為保證給料機的正常運行,必須盡量減少倉壓對給料機的影響。因此在設計溜嘴時,應用溜嘴的后側板承擔料柱的垂直壓力。溜嘴形式及配置尺寸可參考圖及表中數值。
蘇公網安備 32062102000184號